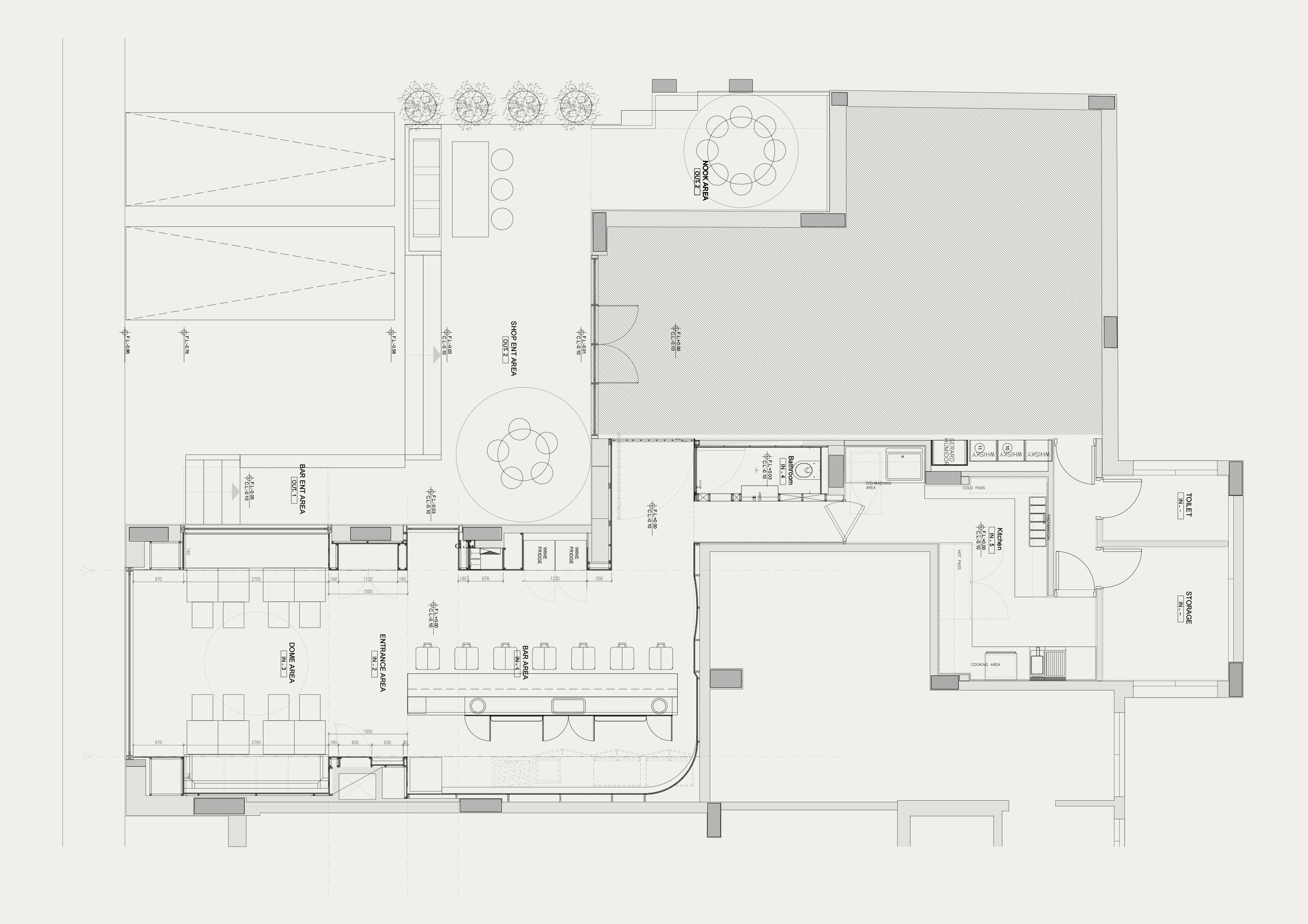
A WINE BAR


A sophisticated wine bar that seamlessly blends modern design with the warmth of charred wood, creating an inviting space for patrons to savor the experience of fine wines in the heart of the city.
Strategically placed mirrors within the space serve as dynamic portals, capturing and reflecting the lively atmosphere of the surrounding street into the dark interior. These mirrors not only expand the perception of space but also infuse the interior with the energy and hues of the city, enhancing the overall ambiance and creating a sense of continuity between the inside and outside.
Hovering over the main seating area and adjacent to the bar is a distinctive light source that not only illuminates the space with a soft, warm glow but also acts as a sculptural centerpiece.
Architectes Anonymes
All rights reserved
Copyright 2022
Client: Metropolis Cinema
Type: Cultural
Area: 2500m2
Year: 2022
Status: Concept







